GLP車間氫氣管道安裝改造,需要找具備設備資質的公司來進行設計出圖,并遵循工業氣體管道的設計和施工標準來安裝維護,氫氣,氨氣,乙炔,甲烷等危險性氣體管道尤其要注意。
通過本文,您可了解到以下知識點:氫氣管道安裝規范,氫氣管道安裝需要什么資質,氫氣管道安裝資質,氫氣管道安裝規范,氫氣管道安裝注意事項,氫氣管道安裝國家標準,氫氣管道安裝的特殊要求是什么? 氫氣管道安裝方法等
GLP車間氫氣管道安裝規范與國家標準
《工業金屬管道設計規范》GB50316-2008
《化工管道設計規范》HG/T20695-1987
《石油化工給水排水管道設計規范》SH3034-1999
《石油化工管道布置設計通則》SH3012-2000
《工業金屬管道工程施工規范》GB50235-200
《石油化工設備和管道隔熱技術規范》SH3010
《建筑設計防火規范》
《石油化工企業設計防火規范工業企業設計衛生標準工業企業噪聲控制設計規范工業企業廠界噪聲標準》
《爆炸和火災危險環境電力系統設計規范》
《石油化工工藝裝置布置設計通則化工裝置設備布置設計規定》
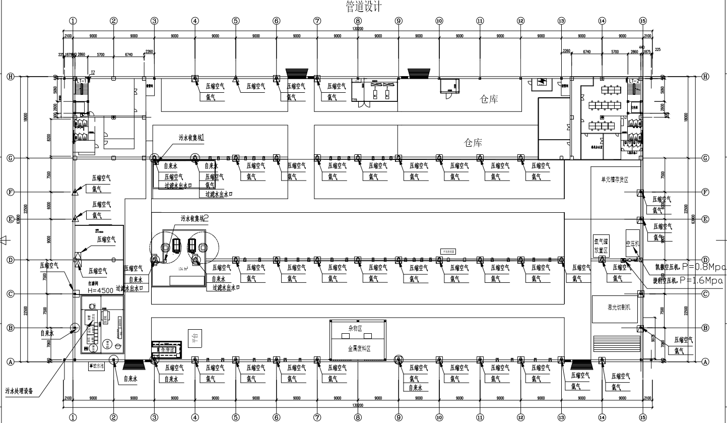
車間氫氣管道改造設計的要點分析
1.每個柱子上的壓縮空氣都取自凱撤空氣壓縮機《0.8Mpa):
2.空氣取自壓縮空氣機;
3.過德水出水口取自污水處理設備中的清水桶;污水桶內,建議管徑為NM40。并設置反沖裝置來琉通管內沉積的污泥;
4.整氣取自筮氣罐故置區;
5.需萎單獨給激光切割機配置氫氣;
6.每個需要設置壓縮空氣口的地方,需萎設置5個快速接口;
7.每個需要設置氫氣出氣口的地方,需要設置6個出氣口,并配流量計裝置;
8.每個需要設置自來水出水口的地方,設置2個水龍頭;2激光切割機的壓縮空氣取自捷豹空氣壓縮機〔1.6Mpa);
9.設計污水回收管道,將廢水收集池1和2的水收集到污水處理設備中的
10.過淀水出水口設置一個水龍頭;
11.所有壓力管道需萎壓力測試,并出具壓力測試報告;

1.自來水從鄰近的自來水管道取水(位于辦公區的衛生間);2.自來水管道用熱浸鍍鋅管道;
3.支路管道規格建議采用DN20,主路管道由設計公司設計;4.自來水管道外有保溫層,防止冬天結冰;
5.按照國家要求做壓力測試實驗,并出具測試報告;.其它未盡事項按照國家相關規定執行;

1.壓縮氣體取自凱撒空壓機。壓縮氣體的壓力為0.8Mpa .最大供氣流量為3.9m 3 / min;
2.壓縮氣體管道用熱浸鍍鋅管道;
3.支路管道規格建議采用DN20,主路管道由設計公司設計;4.虛線框內是我們已有的設備及配件。無需施工;
5.按照國家要求做壓力測試實驗。并出具測試報告;6.其它未盡事項按曛國家相關規定執行;

1.氬氣取自氬氣儲存罐,壓加0.8Mpa ;2.氬氣管道SUS304不銹鋼管道;
3.支路管遒規格建議采用DN20,主路管道規格由設計公司設計;
4.虛線框內是我們已有的設備及配件;
5.按照國家要求做壓力測試實驗。并出具測試報告;6.其它未盡事項按照國家相關規定執行;
6.氬氣取自氬氣儲存罐,壓力2Mpa ;2.氬氣管道用SUS304不銹鋼管道;3.管道規格建議采用DN20;

1.壓縮氣體取自凱撒空壓機,壓縮氣體的壓力為1.58Mpa ,最大氣體流量為1.3m 3/ mi;
2.壓縮氣體管道用熱浸鍍鋅管道,規格為DN20;
車間工廠氫氣氬氣管道安裝資質要求
對于工業氣體管道的設計安裝,涉及壓力管道時,一定要找具備相關壓力管道資質的廠家來設計和施工,資質要求有GC1,GC2壓力管道資質,深藍環境在實驗室氣體管道及工業壓力管道具有多年設計和施工經驗,十多年來專注實驗室氣體管道安裝,專業承接氧氣、氫氣、氦氣、氮氣、乙炔、壓縮空氣等氣體的集中供氣系統設計及管路系統安裝。
車間工廠氫氣管道施工規范要求
首先,氫氣管道必須要安裝截止閥,應鋪設在管廊或管架上,工藝管道和公用工程管道的管廊規模大,當管廊寬度達到10m以上時,應在下方布置泵或其他設備。
(1)管道應成列平行敷設,盡量定直線、少拐彎(除自然補償或方便安裝、檢修操作需要之外),少交叉以減少管架的數量,節省管架材料,便于施工。
(2)設備間的管道連接,應盡可能地短而直,尤其用合金鋼的管道和工藝要求壓降較小的管道.
(3)當管道改變標高或走向時,應避免管道形成積聚氣體的“氣袋”或液體的“口袋"和盲腸。如不可避免時應于高點設放空閥,低點設放凈閥。
(4)輸送有毒或有腐蝕性介質的管道,不得在人行通道上設置閥件、伸縮器、法蘭等,以免法蘭滲漏時介質落入人身上而發生工傷事故。
(5)易燃、易爆介質的管道,不得敷設在生活間、樓梯間和走廊等處。
(6)管道布置不應擋門、窗,應避免通過電動機、配電盤、儀表盤的上空;在有吊車的情況下,管道布置不應妨害吊車工作。
(7)氣體或蒸汽管道應從主管上部引出支管,以減少冷凝液的攜帶;管線要有坡度、以免管內或設備內積液.
(8)由于管法蘭處易泄露,生產管道除與設備接口和法蘭閥門、特殊管件連接處采用法蘭連接外,其他均應采用對焊連接。
不保溫、不保冷的常溫管道除有坡度要求外,一般不設管托。


